Дом во Вьетнаме с расслабляющими природными пространствами и крытым прудом
Дом во Вьетнаме с крытым прудом был спроектирован Vo Trong Nghia Architects, чтобы создать уникальный жизненный опыт. Дом построен на небольшом участке земли, основная жилая площадь расположена в центре дома. Чтобы добавить визуального интереса к пространству, архитекторы решили включить в него внутренний пруд.
Строительные материалы
Дом во Вьетнаме с крытым прудом в основном построен из бетона и дерева, что придает дому деревенский шарм. Снаружи стены выполнены из бетонных блоков, а внутри — деревянная облицовка. В пруду есть крупные камни и галька, которые создают спокойную атмосферу.
Макет и функции
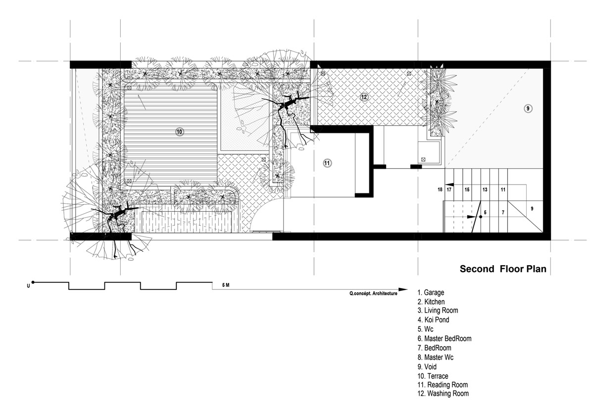
Дом во Вьетнаме с крытым прудом имеет открытую планировку, основные жилые помещения расположены по центру дома. Большой пруд действует как фокус, отделяя гостиную и столовую от кухни и спален. Спальни расположены в задней части дома, что дает жильцам больше уединения.
Дизайн интерьера
Дом во Вьетнаме с крытым прудом имеет простой, но элегантный дизайн интерьера. Во всем пространстве используются натуральные материалы, такие как деревянный пол и каменные стены. Здесь также много зелени, растения и деревья разбросаны по всему дому. Мебель минимальна, что позволяет крытому пруду занять центральное место.
Жизненный опыт
Дом во Вьетнаме с крытым прудом предлагает уникальный жизненный опыт. Спокойная атмосфера и натуральные материалы создают успокаивающую атмосферу, а пруд придает дому ощущение гармонии. Этот дом — отличный пример того, как можно использовать природу для создания эстетически приятного и удобного жилого пространства.

Растения и деревья составляют изюминку этого скромного дома в Дананге, Вьетнам, как внутри, так и снаружи. Дом площадью 100 квадратных метров, названный архитекторами Q Concept «Q house», был создан на основе идеи тропического дома, подходящего для погодных условий Среднего Вьетнама. Большой палисадник – это природный «порог», который подает в дом естественный свет и воздух, что в густонаселенных городах Вьетнама является настоящей роскошью. Внутри растительность помогает создать расслабляющие естественные пространства; Местные материалы и нейтральные цвета сочетаются для создания комфортной температуры в доме для новобрачных, которые в восторге от реализации дома своей мечты.
На фабрике Термодрево производиться много шезлонгов разных размеров, ознакомьтесь с ними на https://termodrevo.ru/shezlongi/
Как и в других густонаселенных городах, городские дома во Вьетнаме имеют лишь небольшие участки земли, отсутствие естественного освещения и вентиляции. Это были проблемы, которые команда архитекторов поставила перед собой задачу решить в первую очередь. Подъездная дорожка, которая также должна была быть доступна для парковки автомобиля, была превращена в природный порог. Штаны уходят корнями в ламели крыши беседки над подъездной дорожкой, вдоль нее проходит узкая грядка с висящими кашпо наверху.

Рядом с автостоянкой от дома тянется небольшой газон и вымощенная брусчаткой площадка с качелями на открытом воздухе.

Газон окаймлен небольшими тропическими растениями и цветами, более крупные экземпляры возвышаются у забора.

Продвигаясь внутрь дома, мы находим полки, установленные поперек кухонного окна, где приютились некоторые комнатные растения.

Белая L-образная кухня занимает переднюю часть дома с видом на подъездную дорожку и сад. Белые блоки помогают ограниченному пространству казаться более открытым и воздушным.

Минималистская столовая имеет изготовленное на заказ банкетное сиденье, созданное вокруг несущей стены, чтобы сэкономить место на полу. Три современных обеденных стула выстраиваются вдоль противоположной стороны, а простой линейный подвесной светильник завершает композицию. Три ступеньки ведут к гостиной с чайным столиком. Идея архитектора заключалась в том, чтобы сделать дом простой формы, в котором все комнаты и помещения связаны между собой для удовлетворения потребностей владельцев.

Комнатные растения процветают по всей тропической гостиной, из встроенных плантаторов, бордюров и отдельно стоящих горшков. Растения и деревья играют незаменимую роль в дизайне этого дома, создавая природную энергию, которая помогает создать расслабляющее пространство, несмотря на небольшой размер комнат.

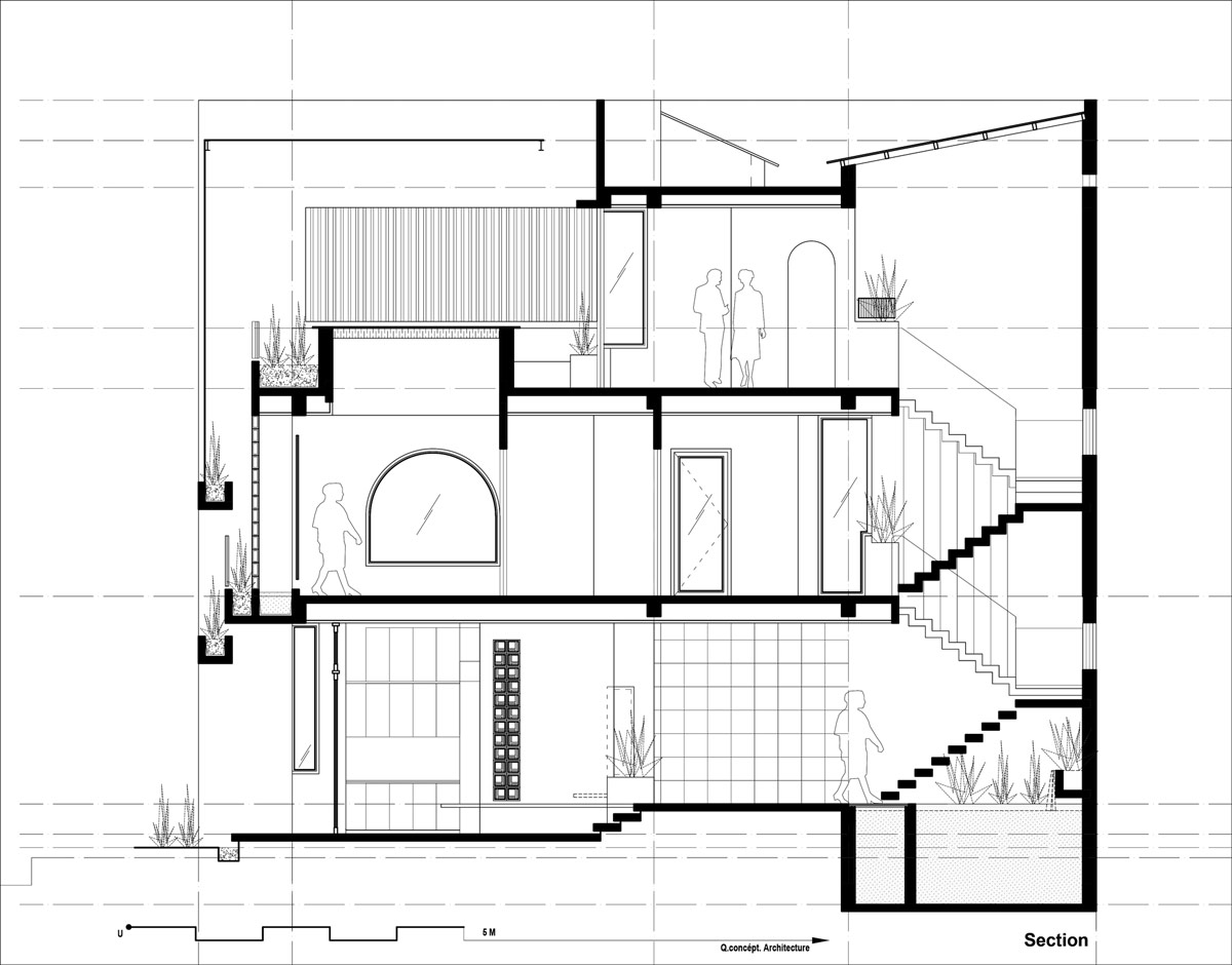
Крытая палуба пересекает зону отдыха и крытый пруд с карпами. Домовладельцы сформировали концепцию этого дома с любовью к природе, растениям и рыбам. До этого места пара жила в крошечных студиях, что делало их несчастными. На этот раз они были полны решимости реализовать дом, полный света и воздуха, место с естественной атмосферой, которое они могли бы назвать своим домом. Архитекторы использовали местные материалы и нейтральные цвета, чтобы завершить видение.

Сбоку от гостиной большой стеллаж заполнен книгами и музыкой. Направленные прожекторы освещают стопки, чайный столик и пруд.

Высокие динамики наполняют жилое пространство открытой планировки чистым звуком.

Когда музыка не играет, из внутреннего пруда с карпами льется расслабляющий звук небольшого водопада.

Светильник над лестницей наполняет пруд естественным светом.

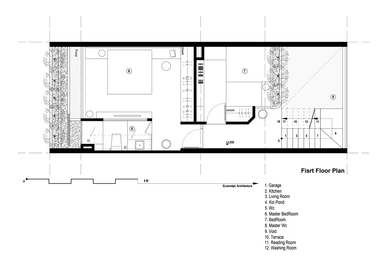
Деревянные ступени на белых подступенках создают дизайн лестницы, ведущей к двум спальням на втором этаже. Окна выходят на лестничную клетку для дополнительной вентиляции наверху.

Крестообразная металлическая балюстрада поднимается по бокам лестницы и сочетается с рамами вокруг светового люка.

Есть также второй этаж, где растения падают дождем через перила над вентиляционными окнами спальни.

Открытые стороны конструкции лестницы обеспечивают свободное движение воздуха по всему дому, а также пропускают великолепный естественный свет.

Окна спальни также позволяют домовладельцам ухаживать за подвесным бетонным кашпо.

Зеленый постельный набор связан с палитрой природы.

Венецианские жалюзи опускаются на окна спальни для создания прохладной тени и уединения.

Встроенный шкаф делает планировку спальни простой и обтекаемой.

На втором этаже дома находится гардеробная.

Лилия мира добавляет нежной зелени прочной конструкции кровати.

В длинном деревянном шкафу для телевизора можно разместить телевизор. За ним большая арка открывает ванную комнату.

Встроенные шкафы построены вокруг туалетного столика с одной стороны спальни, все они выполнены в белом цвете, чтобы гармонировать с нейтральными стенами.

Ванная комната узкая, но светлая и открытая благодаря арочному вырезу, высоким окнам и яркому потолочному окну.

Аналогичная каменная раковина находится в туалете внизу, рядом с гостиной.

Еще один пруд расположен на террасе с газоном.

Растения на вершине перголы обеспечивают зеленый вид с верхнего этажа дома.

Маленький оазис в городе, этот дом — воплощение мечты, охватывающей несколько лет. Есть надежда, что этот дом подарит счастье не только семейной паре, но и их будущим детям.

План крыши.

План второго этажа.

План первого этажа.

План первого этажа.

Чертеж сечения.
